Главная / Волгоград / Продажа / Квартиры

Продажа / Квартиры, Волгоград, Россия, 4 950 000 id: 32854816

4 950 000

Комнат: 3

Площадь: 55 м2

Этаж: 3/5

Характеристики:

  • 13.02.2026 00:00
  • Квартиры
  • 3
  • Волгоградская область
  • Волгоград
  • Ворошиловский
  • Россия
  • Волгоградская область
  • продажа
  • 3
  • 5
  • Панель
  • Балкон
  • 55
  • 37.2
  • 6.3
  • Совмещенный
  • 1966
  • косметический

Описание:

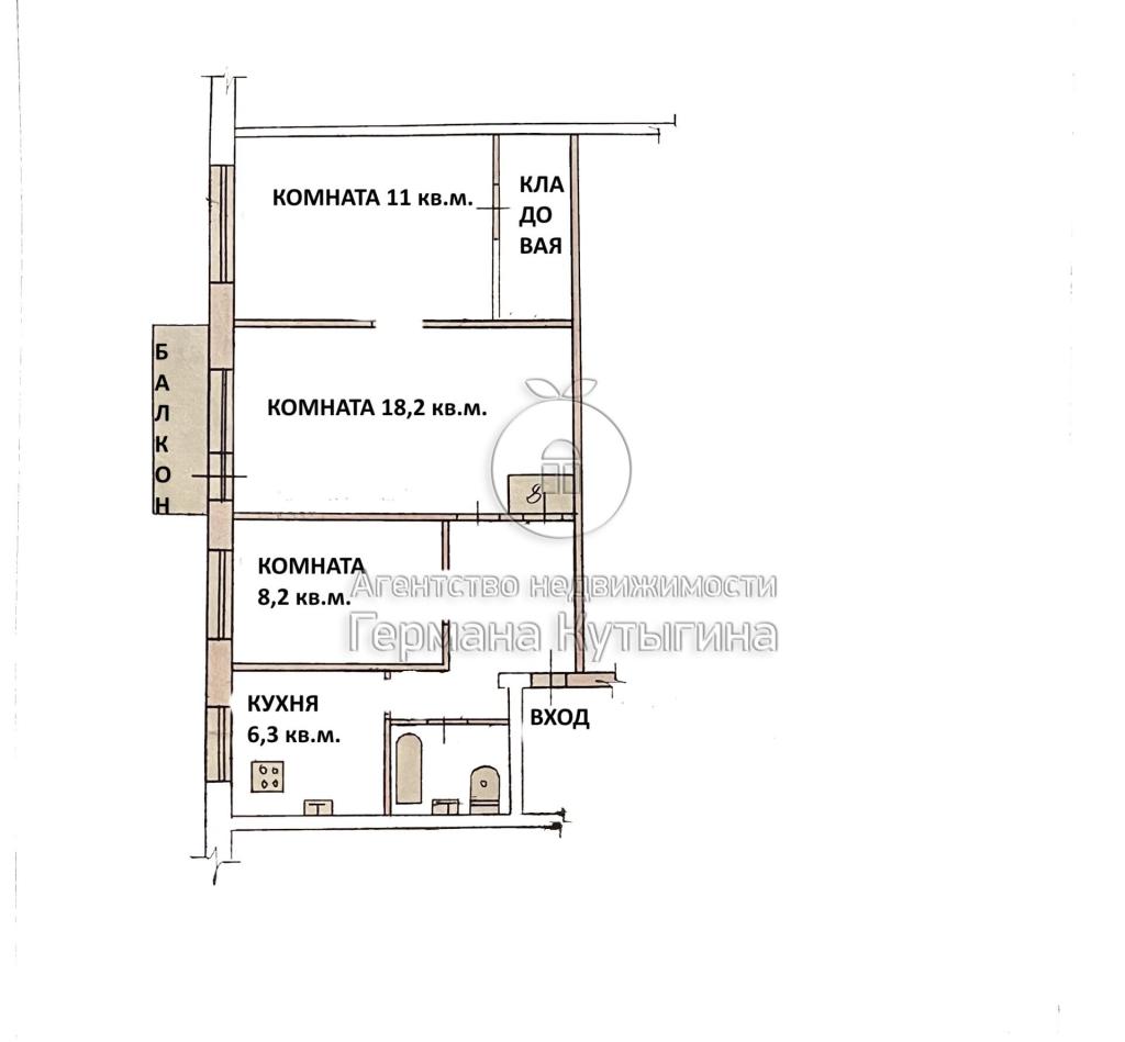
В продаже трёхкомнатная квартира по ул. Краснополянская, д. 38 - идеальный вариант для семьи с детьми. Квартира расположена на 3-ем этаже 5-ти этажного дома- золотая середина. Планировка квартиры: Общая площадь - 55 кв.м., Жилая площадь - 37,2 кв.м. Комнаты (18,2 кв.м., 11 кв.м.,8,2 кв.м.). Кухня - 6,3 кв.м. Совещенный санузел. Балкон. В квартире пластиковые окна. Квартира светлая, теплая. Один взрослый собственник.Документы к продаже готовы! В шаговой доступности остановки общественного транспорта, рынок "Русь", парк, школа, детские сады. Агентство Недвижимости Германа Кутыгина гарантирует Вам чистоту сделки. За 17 лет ни одна сделка не была подвергнута сомнению. Наша профессиональная ответственность застрахована на 10.000.000 рублей.

Нина Жидкова

Нина Жидкова

79047511277
8(8442) 29-70-80
8-904-431-91-11

Рекомендуем обратить внимание:

Популярные предложения

Состав Ассоциации ВРГР

Весь список Ассоциации ВРГР
Яндекс.Метрика